본문 바로가기

Works

파주 복합문화센터

Location: 경기도 파주시 문발동  |  Project Type: Competition

Size: 1,790㎡, B1/3F  |  Design Period: 2022.03~2022.05



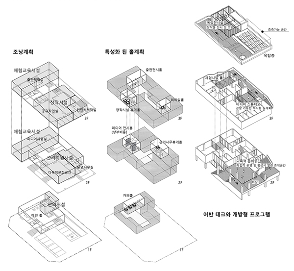
센터 사용을 위한 동선과 체험/소통을 위한 동선을 구분하고

조닝별 특화된 홀과 개방형 프로그램은 데크로 확장된다.


 

 

 


한강과 심학산을 향해 열린 어반데크는 만남과 소통을 위한 장소이며 산책로다.

외부 전시공간이나 실내 프로그램의 확장 공간으로 사용한다.


 

 

 

 

'Works' 카테고리의 다른 글

매송 주민편익시설  (0) 2026.02.05
서울숲 공원관리사무소  (0) 2026.02.04
방학동 숲속마을 주민공동이용시설  (0) 2026.02.04
사벌 야고보 성당  (0) 2026.02.04
정릉동 공영차고지  (0) 2026.01.13