Location: 서울시 양천구 목동 | Project Type: 증축(교육연구시설, Competition 1st prize)
Size: 2,732㎡, 5F | Design & Construction Period: 2023.05~2025.04 | Status: Completed | Photo: 최진보


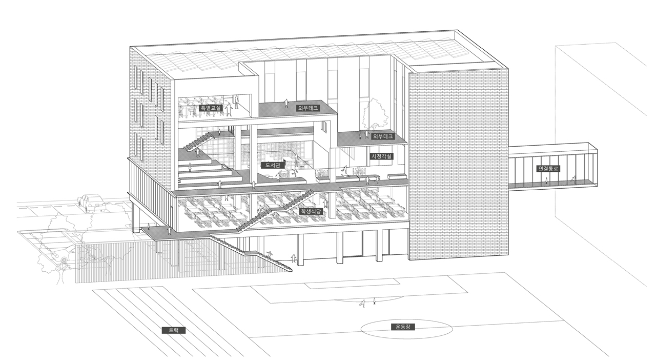
급식실, 학생식당, 도서관, 시청각실 등으로 구성되는 증축동은 학생들의 이동과 운동장의 효율적인 사용을 위해 본관동과 브릿지로 이어진다.
운동장에서 계단과 데크를 통해 식당, 도서관, 시청각실로 접근하면서 학생들의 연속적인 동선이 만들어지고,
이 동선을 통해 층별 프로그램을 연결하고 층마다 외부로 이어지는 휴게공간을 계획한다.



운동장을 향해 열린 복층의 도서관은 학생들에게
시각적 개방감과 여유로운 독서공간을 제공하고,
계단형 독서공간은 특별교실과 연결된다.
[ 3F 꿈마루도서관 ]




'Works' 카테고리의 다른 글
| 태랑초 다목적강당 겸 체육관 (0) | 2026.02.10 |
|---|---|
| 노원청년창업센터 (0) | 2026.02.10 |
| 서울대 캠퍼스환경융합관 (0) | 2026.02.09 |
| 석관초 늘봄교실 (0) | 2026.02.06 |
| 호저면 행정복지센터 (0) | 2026.02.06 |